







Fereastra rezistenta la foc 90 minute 1000x1000mm – Fixa

Fereastra rezistenta la foc 90 minute 1000x1000mm – Fixa
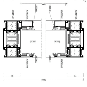
Fereastra fixa rezistenta la foc timp de 90 de minute, realizata din profile din aluminiu Aluprof MB-78EI, certificata conform normelor europene, disponibila in mai multe dimensiuni si finisaje.
- Descriere
- Informații suplimentare
Descriere
Fereastra fixa rezistenta la foc 90 minute este realizata din aluminiu Aluprof MB-78EI Standard Tip 2 si este certificata conform standardelor europene pentru protectie la incendiu (EI 90).
Acest tip de fereastra este potrivit atat pentru cladiri industriale, cat si pentru spatii publice sau comerciale, unde este necesara o compartimentare rezistenta la foc.
Caracteristici principale:
Sistem de aluminiu: Aluprof MB-78EI Standard Tip 2
Tip constructie: Fereastra fixa
Rame: Standard EI 90
Cercevea cu insertie: EI 90 CI
Garnitura termoexpandabila inclusa
Vopsire in camp electrostatic in nuante RAL – conform proiectului
Alte dimensiuni – la cerere prin formularul de contact.
Oferta Se realizeaza personalizat în functie de dimensiuni si finisaj
Informații suplimentare
Tip produs | Fereastra fixa rezistenta la foc |
---|---|
Model | EI 90 – Fixa |
Certificare | Conform normelor europene pentru protectie la incendiu (CE) |
Clasificare rezistenta foc | EI 90 (etanșeitate + izolare termică) |
Dimensiuni | 1000x1000mm |
Dimensiuni personalizate | Disponibile la cerere prin formularul de contact |
Garnituri | Termoexpandabile – pentru etanseitate suplimentara |
Material profile | Aluminiu cu inserție EI 90 CI |
Sticla | Conform standardelor EI 90 |
Structura | Sistem de aluminiu Aluprof MB-78EI Standard Tip 2 |
Culoare | Vopsire in camp electrostatic, culoare RAL conform proiectului |
Produse similare


Usa antifoc 1 canat 60 minute

